| No.787 |
近期
日本建筑大师隈研吾
在中国的首次建筑艺术展“小/大”
在北京利星行中心举行
展览日期:7月14日-8月31日
展览时间:10:00-18:00(周一闭馆)
地点:利星行中心A座北一层(朝阳区广顺南大街8号)
门票:50元 (学生25元,需凭学生证)
感兴趣的小伙伴可以去现场参展啦
今天,小编为您带来隈研吾大师最近的8个项目
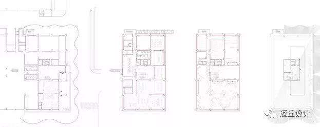
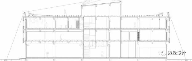
新作“都市绿洲”


设计:隈研吾都市设计事务所
地点:北京
年份:2018
利星行中心是一个以城市森林公园为核心的国际甲级写字楼及五星级酒店综合体。设计师希望将建筑和绿化融为一体,将传统北京四合院的一边打开,形成一座更具开放感的“三合院”,将中国传统的人文地理特色和现代都市的活力宁静巧妙地融入设计之中。身处其间,是都市也是自然,带来一种“大隐隐于世”的绝妙体验。
建筑的廊柱是都市中的现代树林,阳光穿过廊柱抵达建筑内部,营造出一种自然森林的意境。在这里,真实的树木被石材取代,为了找到有树木纹路的石材以配合整体的环境,设计师颇费周折,最终实现了在现实环境中创造多样性和协调性的设计初衷。

与传统的封闭四合院不同,设计师希望创造一座开放的四合院,因此用铝制幕帘替代了原本的砖墙,使得建筑的一半和道路联系在了一起。砖墙是工人一块一块垒制而成的,因此铝幕也要一块一块拼接成最后形态,这点和砖十分相似。
波特兰日本花园


设计:隈研吾
项目地点:美国
年份:2017
波特兰日本花园坐落于俄勒冈州波特兰西山地带、华盛顿公园内部,它于 1967 年正式开放,拥有不同风格的园林、日式茶馆和蜿蜒的小径,还曾被前日本驻美大使松永信雄称作是“日本本土之外最美的日本花园”。最初由东京农业大学教授佐藤远野设计。

扩建部分于今年四月初对外开放,隈研吾与日本花园的馆长、园艺大师 sadafumi uchiyama 紧密合作,为花园重新设计了从地面直到山顶的花园入口,另外新增了约 1.38 万平米的空间,旨在丰富游客的日本文化体验。



这些房子有着典型的日式风格、双层的坡屋顶其中最上一层被种植了绿化。建筑层高低矮,立面和内部装饰大部分采用当地木材,与环境完美协调。
文化村内最大的三栋建筑组成了 Jordan Schnitzer 日本文化艺术学习中心,它包括全年开放的展馆和多功能教室,一个重点展示音乐的文化角、礼品店和一间收藏日本园艺及相关艺术内容的图书室。

与此同时,花园内还新增了一栋主要用于园艺作坊的房屋,想让游客深度体验日本文化。另外还有一间坐落于山坡的咖啡馆,可以作为休憩之处。

隈研吾以他擅长的木结构塑造了这些建筑考究的日式外观,通透的玻璃窗带来了舒心的氛围,不仅如此,他还试图在这个项目中体现环保意识的重要性。“生态责任和环境意识在我们的设计中异常重要”,隈研吾说。


野鸟的栖息地

地点:长野县轻井泽
面积:478 m2
时间:2016.12
野鸟的栖息地也被知道浅间山对面期望斜面的森林,想要一生所爱的人而艺术的宾馆。为了使斜坡和森林的影响最小化,文字化,小屋顶在森林中飞翔的状态。屋顶根据个别的单元的景观的条件,有时闭上,有时打开,结果成为了鸟儿在随机上的翅膀。地上部分尽可能确保透明度65毫米角无垢的铁柱子,用木制托梁构成的屋顶那极小的柱子而被改变,森林中浮现这样的形象可以做成的。
创新抗震博物馆

地点:石川县能美市
时间:2013年8月- 2015年11月
面积:2873.42 m2
建筑师创造性地利用碳素纤维材料加固了刚性框架混凝土结构的建筑,增强其抗震能力。经本地传统编绳工艺加工后的碳素纤维绳灵活而坚韧,其强度达到了钢的7倍。
相同的材料用在室内,则显得柔美轻盈,办公室空间摇身一变成了了业主产品的展览馆。碳素纤维的刚强和柔软在本项目中发挥得淋漓尽致,而建筑师并没有止步于此。建筑顶部的实验性屋顶花园所用的多孔陶瓷板(Greenbiz),也是在碳素纤维生产过程中的副产品。


隈研吾新作腾冲"石"温泉度假村
项目名称:云峰山温泉度假村
地点:云南腾冲
设计师:隈研吾 Kengo Kuma and Associates
年份:2016
面积:59000 sqm
云峰山位于云南腾冲西北部,云雾缭绕,仙气袅袅。东边的山脚下,顺着山势层层叠叠、缓缓下降,隐约间能看到一所建筑——云峰山温泉度假村。建筑的整体设计概念是在充分尊重自然的前提下,将各个建筑体巧妙地隐于山林之间。建筑周围以及步行道的边沿种植有树木和灌木,有助于方案与四周浓密的森林相互融合。
建筑的墙面、屋顶和花园的铺地是由附近采石场深浅不一的石板组合而成的,统一而丰富,在沉默中向人们传达着大地的力量。
设计出大小、厚薄完全不同的108种石块规格,以便进行色彩错落、嵌合凹凸的搭配,整个工作细化到每栋建筑每一面墙体的石料拼贴都有详细的图纸,每一片石材在施工的时候都有编号,最终实现“随便两平方米的地方都不会有重复的墙体”。来自附近采石场深浅不一的石板被组合在一起,出现在建筑的墙面、屋顶和花园的铺地中,统一却又丰富,营造出一种繁复的像素化外观,在沉默中向人们传达着大地的力量。
当地的天然地热温泉是项目的迷人之处。所有的客房都是独门独院的Villa,都有自己的庭院及户外露天泡池。户外泡池是整个Villa的精神中心,由完整的巨石雕刻而成,以赋予中国人福禄寿的吉祥寓意作为泡池的形体。
室内空间分为客厅、餐厅、厨房、spa按摩区以及卧室、浴室几个区域,中间为户外花园及露天泡池。空间上完全通透,创造了视线延伸的最大化。
花博会主入口
设计者:隈研吾建筑都市设计事务所
项目地点:日本静冈县
建筑面积:2445㎡
建造时间: 2001年—2003年
主入口设计提案意在将其营造成一种竹林环境。设计者意图创造一个内外界限模糊的空间,使其成为一个区域并拥有一定的厚度,而不是清晰地划分界限。更确切地说,是挂着的2328条竹片,形成了一种竹林氛围,这个竹林被当作“大门”。竹林的周边则由不昂贵但高透明的格扇网柔和地包裹着。
丹麦安徒生博物馆
隈研吾建筑都市设计事务所(Kengo Kuma & Associates), 与Cornelius+Vöge 事务所及 MASU planning景观规划事务所的合作团队共同发布了位于丹麦(Denmark)欧登塞(Odense)的安徒生(Hans Christian Andersen)博物馆方案。为了营造通往安徒生童话王国的氛围,5600平方米的建筑有三分之二在地下, 地面上预留出的空间是被“施了魔法”的花园:里面交织着大树,草坪,方形树篱和大灌木。博物馆是由一系列可以穿行的圆柱体量组成,挖开的绿色屋顶下面,露出玻璃和木格做成的幕墙,它们包围着下沉的花园。这个项目会取代曾经的安徒生博物馆,主题从关注作者生平转变为关注他笔下的故事。
“我们已经找到了独一无二的获奖方案,”欧登塞市长兼竞赛评委会主席Anker Boye说道:“事实上,隈研吾先生来自日本,他只是展示了你出门在外时找到家的感觉。该方案具有独特的品质,抓住了安徒生以及欧登塞市的精神所在,有打动人心的国际水准,同时融合了地方特色。我认为这是欧登塞独一无二的项目,它超越了地方或国家。
Green Cast

由隈研吾事务所于2011年修建的Green Cast,位于日本小田原市,面积约1052平方米,是个极具视觉冲击力的综合建筑。
建筑共五层。底层和地下室有停车位,以及一个药店和诊所。二层和三层有办公空间和一个职业学校,四层是一个两卧室的住宅,并通向一个私人的屋顶平台。以铝铸板构成的垂直绿化有机立面为主要特色。
这些略微倾斜的板面由整块的直板铸件构成,并且每块板都被赋予一个有机的外观,犹如被腐蚀的泡沫。诸如水管,通风用的储气缸和落水管等设备都被整合在这些铝板后面,使建筑的立面更加完整。
* 图片来自网络,仅供学习参考!
微信公众号metrostudio
文章内容为本站编辑转载,转载目的在于传递更多信息,并不代表本网赞同其观点和对其真实性负责。
如涉及作品内容、版权和其它问题,请在30日内与本网联系,我们将在第一时间删除内容!
联系邮箱:info@cidip.cn